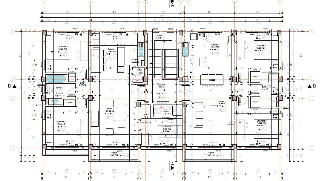
Plan d'Architecture - Plans techniques détaillés
Les plans d'architecture et les plans détaillés jouent un rôle crucial dans le processus de conception et de construction d'un bâtiment. Ils servent de guide précis et de référence visuelle pour tous les intervenants, qu'il s'agisse des architectes, des ingénieurs, des entrepreneurs ou des ouvriers sur le chantier. Ces plans permettent de représenter fidèlement la disposition des espaces, les dimensions, les matériaux et les techniques de construction, tout en respectant les normes et réglementations en vigueur. Grâce à leur précision, ils facilitent la coordination entre les différents corps de métier, minimisent les risques d'erreurs et favorisent une gestion efficace des ressources. En outre, les plans détaillés, comme les plans de ferraillage ou les plans techniques, garantissent la stabilité, la sécurité et la durabilité des ouvrages, tout en offrant une vision claire du projet avant sa réalisation.